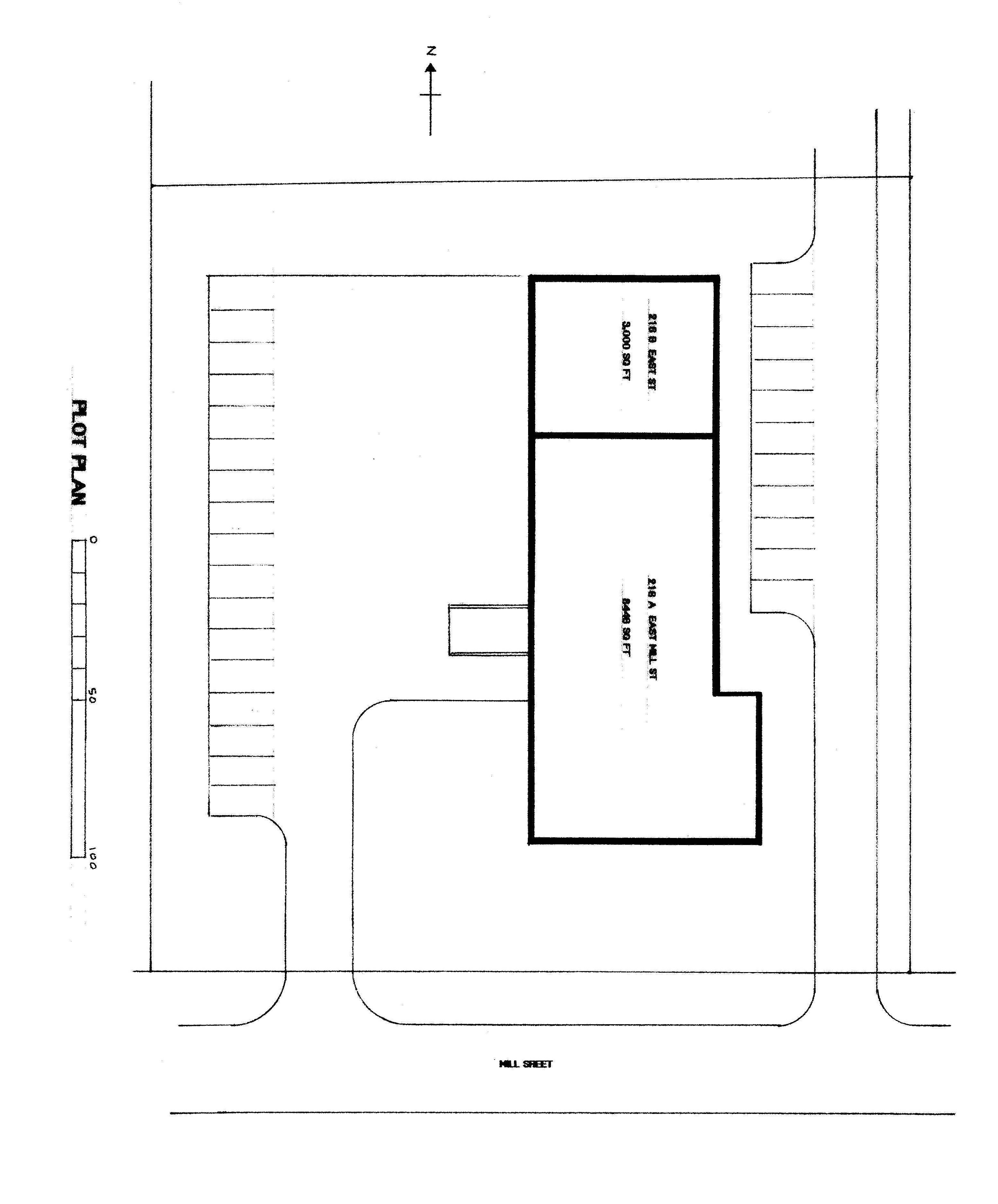
216 East Mill St.
Springboro, Ohio 45066
Springboro, Ohio 45066
Building Features
Value
Zoning:
M-1
Total Area:
11,446 sq. ft.
Office / Warehouse area:
3,064 sq.ft. / 8,382 sq. ft.
Parking Spaces:
35+
Type of Construction:
Conventional & Pre-Engineered
Loading Docks:
(1) 8x9 Dock
Overhead Doors:
(1) 12x14 Drive / (1) 20x14 Drive
Type of Heat:
Gas
Electrical Service:
400 Amp 120/240V
Three Phrase:
No
Sprinkler System:
No
Exhaust Fans:
Yes
Office A/C:
Yes
Distance to Interstate:
2.5 mile (I-75)



